Das denkmalgeschützte Hotel Lunik in Eisenhüttenstadt steht seit dem Jahr 2000 leer. Im Zuge geplanter Umnutzungsmaßnahmen forderte das Denkmalamt eine detaillierte Begutachtung der ebenfalls denkmalgeschützten Klimaanlage. Die Aufgabe lautete: ein Restaurierungskonzept erstellen, das als fundierte Entscheidungsgrundlage für alle zukünftigen Maßnahmen dienen sollte.
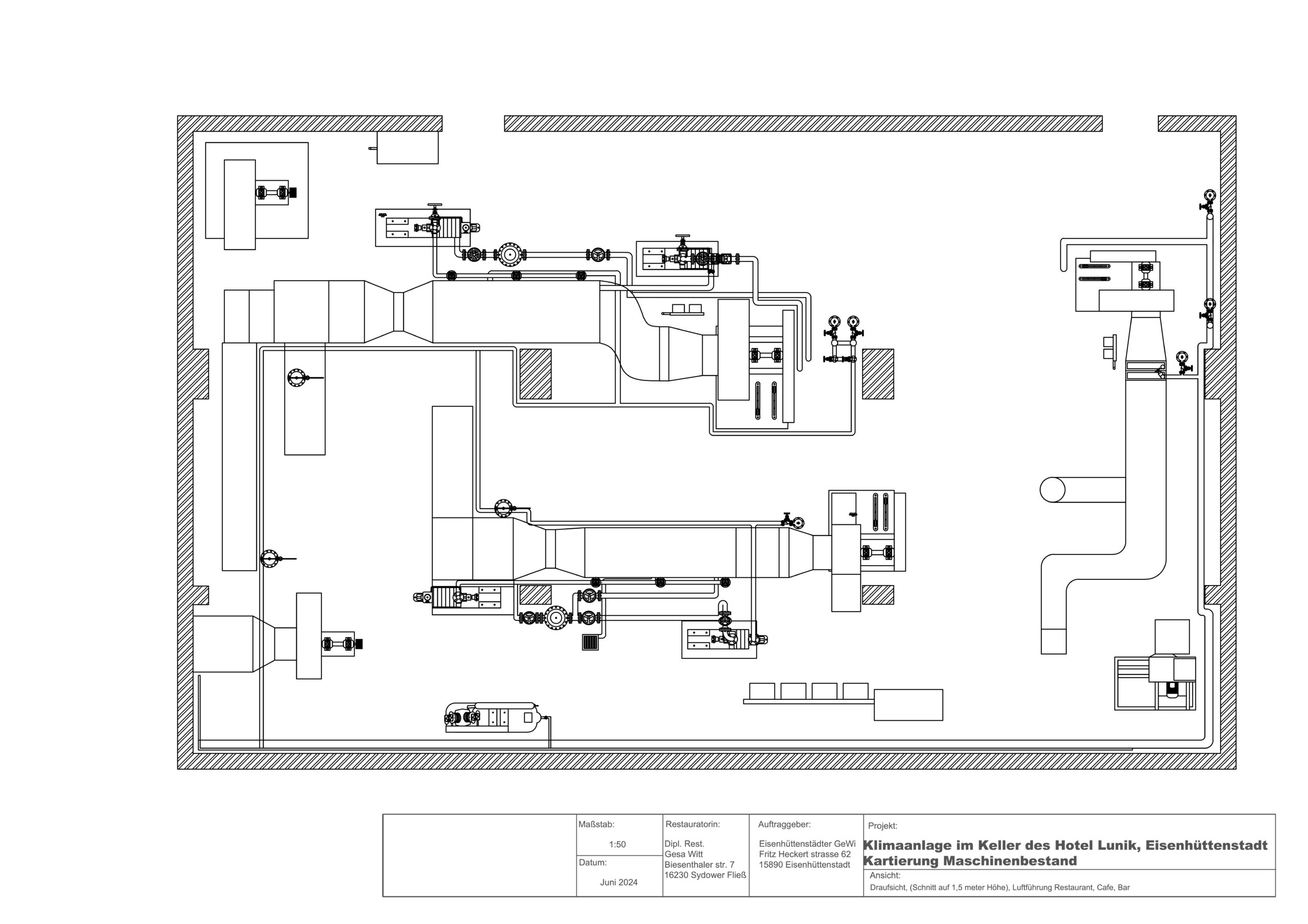
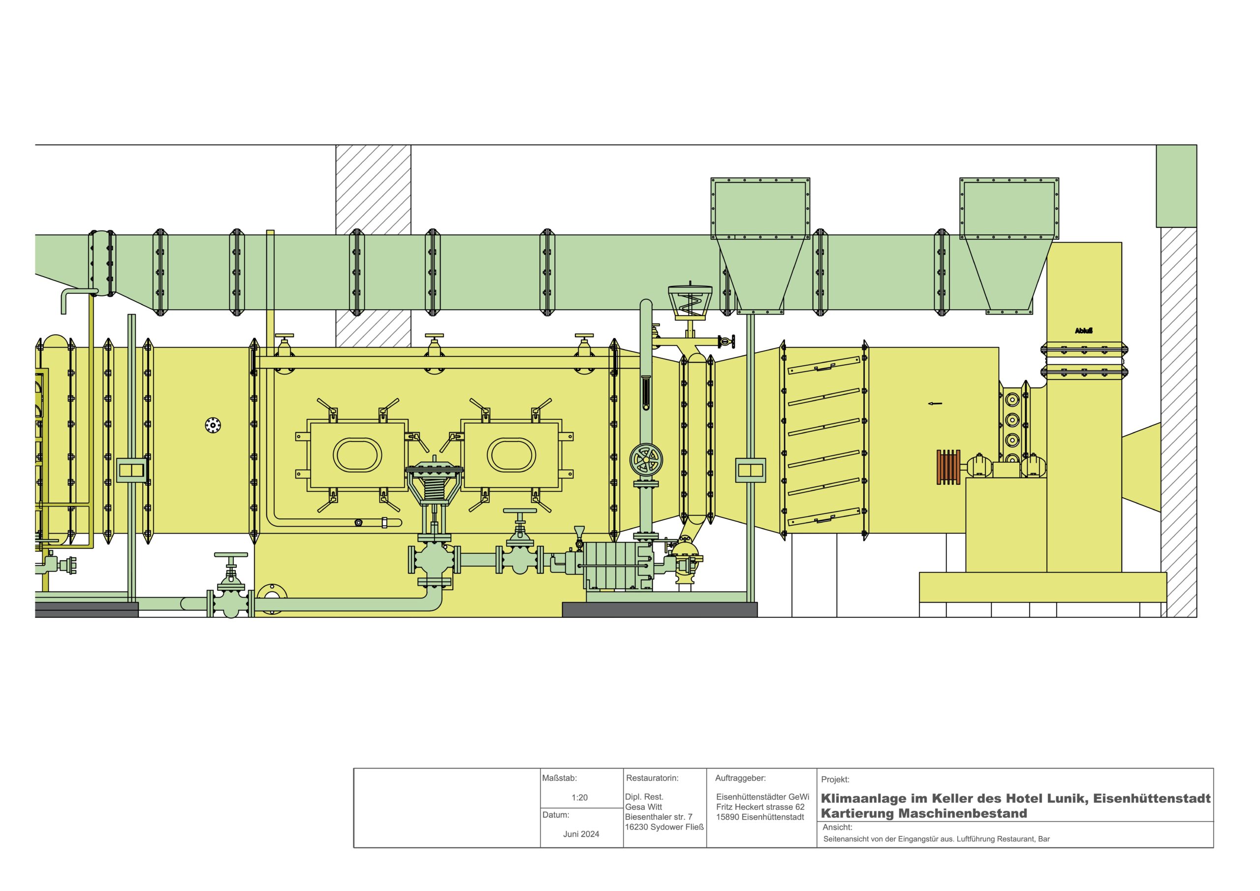
Bestandserfassung eines technischen Denkmals
Die historische Klimaanlage befand sich in einem jahrzehntelang unberührten Zustand. Der Auftrag umfasste eine vollständige fotografische Dokumentation der Anlage, eine zeichnerische Kartierung in AutoCAD sowie eine Klärung der Funktionsweise der komplexen Anlagenteile. Ziel war es, dem neuen Eigentümer und der Denkmalbehörde eine fundierte Grundlage für alle Entscheidungen über den Erhalt, die Umnutzung oder den möglichen Rückbau zu liefern.
Wie wir ein Restaurierungskonzept erstellen
Die Erarbeitung des Konzepts erfolgte in mehreren Schritten. Die Funktionsweise der Anlage konnte durch die Analyse der Originalzeichnungen und mithilfe eines ehemaligen Mitarbeiters der Herstellerfirma rekonstruiert werden. Parallel dazu wurde durch eine umfassende Archivrecherche die technikgeschichtliche Relevanz der Anlage bewertet. Die Zusammenführung dieser Daten – Zustand, Funktion und historische Bedeutung – zu einer fundierten restauratorischen Einschätzung ist der Kern der Aufgabe, wenn es heißt, ein Restaurierungskonzept zu erstellen.
Grundlage für die Zukunft des Denkmals
Das Ergebnis war eine ausführliche Zusammenstellung, die vom Denkmalamt mit Begeisterung aufgenommen wurde. Das erstellte Gutachten dient nun als entscheidende Grundlage für den weiteren Umgang mit dem Industriedenkmal. Das Projekt zeigt beispielhaft, wie wichtig es ist, ein professionelles Restaurierungskonzept zu erstellen, bevor bauliche Veränderungen an historischer Bausubstanz vorgenommen werden.









